- Woonoppervlakte
- Circa 97 m²
- Perceeloppervlakte
- Circa 148 m²
- Bouwjaar
- Gebouwd in 1968
- Aantal kamers
- 5 kamers (3 slaapkamers)
voordat deze woning op de vrije markt wordt aangeboden, krijgen huurders van een sociale huurwoning van portaal, woonwaarts, talis en ssh& in de gemeenten nijmegen, wijchen, beuningen en druten voorrang om deze woning te kopen. wil je als huurder in aanmerking komen voor deze voorrangsregeling? maak dan uiterlijk 22 september 2025 je interesse kenbaar bij de verkopende makelaar. daarna is er geen garantie op bezichtigen en deelname.
malvert is een wijk die door bewoners zeer gewaardeerd wordt. rustig en royaal opgezet, voldoende parkeergelegenheid en op korte afstand van alle denkbare voorzieningen.
ook recreatiegebied "de berendonck", de belangrijke uitvalswegen, winkelcentrum en ns-station dukenburg, maken dat deze woning in een zeer aantrekkelijke leefomgeving ligt.
indeling:
begane grond: entree; tochtportaal met garderobekast; hal met trapkast en toilet met fonteintje; doorzon woonkamer, met deur naar de dichte ruime keuken. vanuit de keuken (zonder keukenopstelling) doorgang naar de tuin.
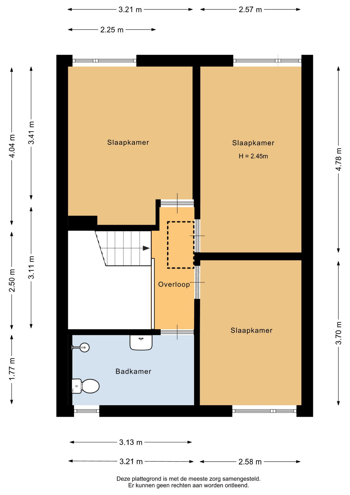
1e verdieping: overloop; 3 slaapkamers en ruime badkamer met douche, wastafel, tweede toilet en wasmachineaansluiting.
2e verdieping: de zolderverdieping is bereikbaar via een vlizotrap; opstelplaats c.v.-ketel (nefit cv-ketel) en bergruimte. door het eventueel plaatsen van een vaste trap naar de zolder behoort het maken van een slaapkamer zeker tot de mogelijkheden. meer dakramen en dakkapel(len) behoren uiteraard ook tot de mogelijkheden.
bijzonderheden:
- tussenwoning met royale achtertuin, achterom en berging;
- centraal gelegen ten opzichte van de wijkvoorzieningen;
- aan rustige/kindvriendelijke straat gelegen;
- c.v. ketel; nefit (2023);
- energielabel b;
- voldoende parkeerruimte op openbaar terrein;
- compleet naar eigen smaak in te richten;
- de woning is voorzien van dak- en muurisolatie en dubbel glas;
- projectnotaris bruggink & van beek notarissen wijchen;
- de taxatiewaarde is € 320.000,-, deze wijkt af van de vraagprijs. vraagprijs is leidend.
- zelfbewoningsplicht/verhuurverbod en anti-speculatiebeding van 4 jaar van toepassing;
- koop nu tijdelijk met een gunstige gemeentelijke starterslening: exclusief voor starters, vraag
naar de voorwaarden! op = op.
Overdracht
- Koopsom
- € 325.000 k.k.
- Status
- Beschikbaar
- Aanvaarding
- In overleg
Bouw
- Object type
- Eengezinswoning, tussenwoning
- Soort bouw
- Bestaande bouw
- Bouwjaar
- 1968
- Soort dak
- Zadeldak bedekt met pannen
Oppervlakte en inhoud
- Woonoppervlakte
- 97 m²
- Perceeloppervlakte
- 148 m²
- Inhoud
- 437 m³
- Overige inpandige ruimte
- 22 m²
- Externe bergruimte
- 9 m²
- Gebouwgeb. buitenruimte
- 3 m²
Indeling
- Aantal kamers
- 5 kamers (3 slaapkamers)
- Aantal badkamers
- 1 badkamer
- Badkamervoorzieningen
- Toilet, wastafel, wasmachineaansluiting
- Aantal woonlagen
- 3 woonlagen
- Voorzieningen
- Mechanische ventilatie, dakraam
Energie
- Energielabel
- B
- Energielabel registratie
- 12-09-2022
- Isolatie
- Dakisolatie, muurisolatie, dubbel glas
- Verwarming
- Cv-ketel
- Warm water
- Cv-ketel
- Cv ketel
- Nefit proline combiketel gas gestookt uit 2023 (eigendom)
Buitenruimte
- Ligging
- Aan rustige weg, in woonwijk
- Tuin
- Achtertuin, voortuin
- Afmetingen achtertuin
- 60 m² (10 meter diep en 6 meter breed)
- ligging tuin
- Gelegen op het noordoosten en bereikbaar via achterom
Bergruimte
- Schuur / berging
- Vrijstaand steen
Garage
- Soort garage
- Geen garage
Parkeergelegenheid
- Soort parkeergelegenheid
- Openbaar parkeren
Indicatie hypotheeklasten
Eigen inleg:
Spaargeld / overwaarde
Rente:
Laagste 10-jaars rente
Laagste 10-jaars rente
2,75% - Centraal Beheer Groen... - NHG
3,05% - Centraal Beheer Groen... - 80%
Laagste 20-jaars rente
3,52% - Syntrus Achmea Groen B... - NHG
3,79% - Syntrus Achmea Groen B... - 80%
Laagste 30-jaars rente
3,64% - Syntrus Achmea Groen B... - NHG
3,88% - Syntrus Achmea Groen B... - 80%
Hypotheek:
Bruto maandlasten: € 0 p/m
Netto maandlasten: € 0 p/m
Hoe berekenen we dit?
Het rentepercentage is gebaseerd op de laagste 10-jaars vaste rente voor één hypotheekdeel. De vermelde rente (2.75% met NHG) is gecontroleerd op 12-10-2025. Deze berekening is gebaseerd op een annuïteitenhypotheek die volledig wordt afgelost, waarbij de maandlasten gedurende de gehele looptijd gelijk blijven. De werkelijke rente en netto maandlasten kunnen variëren, afhankelijk van uw persoonlijke situatie en de hypotheekverstrekker. Raadpleeg een financieel adviseur voor een nauwkeurige berekening en advies. Aan deze berekening kunnen geen rechten worden ontleend; het dient enkel als indicatie.
Documentatie
Kadastrale kaart
Leefomgeving
Plattegronden PDF
BAG uittreksel
Brochure
Bezoek onze website
Inloggen move.nl
Bezichtiging
Bod uitbrengen
Waardebepaling
Zoekopdracht
Alles downloaden
Zonnegrenzen bekijken
Inwoners in Nijmegen
Cijfers voor postcodegebied 6538
- Totaal aantal inwoners
- 176745 inwoners
- Mannen
- 48%
- Vrouwen
- 52%
Inwoners in Nijmegen
Cijfers voor postcodegebied 6538
- tot 15 jaar
- 14%
- 15 tot 25 jaar
- 17%
- 25 tot 35 jaar
- 27%
- 45 tot 65 jaar
- 25%
- 65 en ouder
- 17%
Huishoudens in Nijmegen
Cijfers voor postcodegebied 6538
- Eenpersoons zonder kinderen
- 48%
- Meerpersoons zonder kinderen
- 26%
- Huishoudens zonder kinderen
- 74%
Huishoudens in Nijmegen
Cijfers voor postcodegebied 6538
- Huishoudens met één kind
- 9%
- Huishoudens met meerdere kinderen
- 17%
- Huishoudens met kinderen
- 26%
Woningen in Nijmegen
Cijfers voor postcodegebied 6538
- Woningen voor 1945
- 1%
- Woningen tussen 1945 en 1965
- 1%
- Woningen tussen 1965 en 1975
- 67%
- Woningen tussen 1975 en 1985
- 25%
- Woningen tussen 1985 en 1995
- 1%
Woningen in Nijmegen
Cijfers voor postcodegebied 6538
- Woningen tussen 1995 en 2005
- 2%
- Woningen tussen 2005 en 2015
- 2%
- Woningen na 2015
- 2%
- Huurwoningen
- 60%
- Koopwoningen
- 40%
Overige in Nijmegen
Cijfers voor postcodegebied 6538
- Gemiddelde WOZ waarde
- € 168.000,-
- Personen onder de 65 met uitkering
- 14%
Overige in Nijmegen
Cijfers voor postcodegebied 6538
- Adressen per km²
- 2201
- Stedelijkheid (schaal 1 op 5)
- 80%



Indien u vragen heeft of u wilt een bezichtiging inplannen, dan kunt u gebruik maken van het formulier hiernaast. Er zal daarna op korte termijn contact met u worden opgenomen.
St. Annastraat 18
6524 GC, Nijmegen
024 360 7055 nijmegen@driessenmakelaardij.nl www.driessenmakelaardij.nlContact opnemen
Al 40 jaar uw huismakelaar
Ondernemende makelaar met ambitie
U wilt een huis kopen, verkopen of laten taxeren. Het liefst schakelt u een betrouwbare makelaar in bij u in de buurt. Maar hoe vindt u precies de makelaar die het best bij u past? Het aanbod is al zo groot.
Driessen Makelaardij maakt uw keuze een stuk gemakkelijker. Hoe? Allereerst zijn we al veertig jaar een begrip in de regio. Met een kantoor in Wijchen en in Nijmegen kennen wij de lokale huizenmarkt op ons duimpje. En niet onbelangrijk: de huizenmarkt kent ons. ‘Want vaak is de eerste stap van een woningzoeker de stap naar ons kantoor.’ Hierdoor weten wij vraag en aanbod snel bij elkaar te brengen en perfect in te spelen op de wensen van klanten en potentiële klanten. Bovendien zijn we aangesloten bij de NVM, de grootste brancheorganisatie in de makelaardij. Onze mensen zijn dus uitstekend in staat het hele aan- en verkooptraject van begin tot eind professioneel te begeleiden.
Uw ambitie is onze ambitie. Dat wil zeggen: u verwacht van ons dat we tot het uiterste gaan u die kwaliteit te bieden waarom we al zo lang bekend staan. Daar mag u ons aan houden!

Nieuwste reviews
-
Fransen van de Puttestraat 9
De makelaar beschikt over goede kennis van de lokale markt. Bezichtigingen werden snel en efficiënt ingepland. De prijs-kwaliteitverhouding...
-
Antiloopstraat 27
Het contact met de makelaar verliep goed en accuraat met duidelijke informatie en afspraken, een prettige bejegening en vakkundig. Wij zijn...
-
Aldenhof 3315
Topmakelaar, niks op aan te merken, goed contact, vriendelijk en leuk om mee samen te werken. Communicatie omtrent voortgang en openstaande...